На главную
Отправить письмо
Окна ПВХ
ПВХ Профиль Металлопластик
Gridnev ОКНА - производство, установка,
реализация металлопластиковых окон.

Что должен учесть проект

Помимо того, о чем уже было сказано, необходимо учесть размер семьи, образ жизни и характер увлечений каждого ее члена. Немаловажным представляется и вопрос, связанный с перспективой развития семьи на годы вперед, причем не на 3–5 лет. Кратковременный прогноз может через 10 лет поставить вас перед фактом лишних комнат или, наоборот, их нехваткой. Итак, обратите внимание на:

1) размер семьи и вероятность изменения ее количественного состава;

2) возможность реконструкции дома;

3) общий срок возможной эксплуатации.

Неизбежно встают вопросы: что непременно должно быть в доме, от чего можно отказаться или отложить на время? Кроме того, дом – это не только место, где едят и спят, поэтому нужно предусмотреть и помещение для общения, отдыха и общих развлечений. Не следует забывать о том, что каждый член семьи имеет право на уединение. Таким образом, дом должен иметь по крайней мере столько комнат, сколько человек в семье, остальные помещения – по мере возможности (наличие кухни и хотя бы 1 ванны настолько очевидно, что не подлежит обсуждению).

Дом лучше размещать в той части участка, которая ближе к дороге (рис. 1).

Компоновка построек на участке

Рис. 1. Компоновка построек на участке: 1 – дом; 2 – хозяйственный блок

Это позволит избежать нерационального использования земли. Если строительство гаража не предполагается, то место под стоянку все же необходимо предусмотреть (рис. 2).

Зонирование земельного участка

Рис. 2. Зонирование земельного участка: 1 – улица; 2 – жилой дом; 3 – сад; 4 – гараж или стоянка; 5 – место под хозблок

Минимальный размер стоянки должен составлять 2,5 х 5 м, а с учетом твердого покрытия – 2,7 х 5,5м. Таким образом, предварительная схема размещения построек представлена на рис. 3.

Примерное расположение построек

Рис. 3. Примерное расположение построек: 1 – дом; 2 – хозяйственный блок и гараж; 3 – сад

Жилые помещения лучше ориентировать на юг, что позволит максимально использовать тепловую энергию солнца и сэкономить на отоплении. Окна, имеющие тройное остекление и ориентированные на южную сторону, пропустят в дом больше тепла (рис. 4).

Тепловой режим в помещениях при одинаковом остеклении

Рис. 4. Тепловой режим в помещениях при одинаковом остеклении

Если на участке имеются деревья, их желательно сохранить. При этом лиственные породы летом дают тень, а зимой не препятствуют свету (рис. 5).

Размещение лиственных деревьев на участке

Рис. 5. Размещение лиственных деревьев на участке

Хвойные насаждения лучше располагать на северной стороне, так как они лучше защитят зимой от ветра. Что касается надворных построек, рациональнее разместить их так, как показано на рис. 6. Это защитит дом от погодных условий и любопытных глаз соседей.

Оптимальное размещение построек и деревьев на участке

Рис. 6. Оптимальное размещение построек и деревьев на участке

Планируем внутренние помещения

Этот вопрос диктуется прежде всего удобством людей, которые будут проживать в доме. На стадии разработки проекта нужно предусмотреть фундамент как под несущие стены, так и под разделительные перегородки. Это необходимо для того, чтобы не допустить непредвиденных расходов при перепланировке в процессе уже начатого строительства.

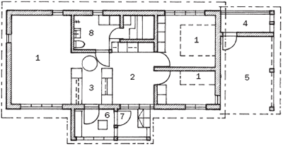
Одним из факторов, который определяет планировку дома, являются гигиенические нормы (рис. 7).

Один из вариантов планировки дома площадью около 70 м2

Рис. 7. Один из вариантов планировки дома площадью около 70 м2: 1 – комнаты; 2 – кухня; 3 – коридор; 4 – кладовая; 5 – гараж; 6 – прихожая; 7 – крыльцо; 8 – санузел

Объем воздуха на одного жильца равен 25–50 м3, что составляет площади примерно 9 м2 при высоте потолка 3 м. С учетом этих цифр и следует определять размеры комнат.

Следующий момент связан с уровнем естественной освещенности.

Рациональнее располагать комнаты вдоль наружных стен, при этом глубина помещения более 6 м нефункциональна.

Необходимо соблюсти и определенные пропорции комнат, наиболее целесообразные варианты представлены на рис. 8.

Пропорции комнат

Рис. 8. Пропорции комнат

Кроме того, допустимы следующие соотношения: 1 : 1,75, 1 : 2, 1,75 : 1.

Удобно, если все члены семьи разного пола будут иметь отдельные спальни, которые не должны быть проходными (допускается проход в спальню через общую комнату). Площадь общей комнаты не должна быть менее 18 м2. Если есть возможность, то она должна составлять 25–30 м2.

Что касается кухни, если она будет совмещать функции кухни и столовой и будет оснащена современным оборудованием, то площадь менее 15–16 м2 просто нецелесообразна.

Ванные комнаты должны находиться поблизости от спален и кухни, наименьшая их площадь должна составлять 4,5 м2.

Для коридоров не разработаны строгие нормы, но их ширина должна быть не менее 1,5 м.

Площадь прихожей – примерно 10 м2, так как здесь необходимо разместить шкаф для верхней одежды и обуви. Здесь также можно предусмотреть и лестницу, если дом будет решен в 2 уровнях (что, надо сказать, очень удобно).

Следует учитывать, что площадь террасы, веранды и прочего должна занимать около 20% от общей площади. Конечно, летние помещения, балконы не относятся к обязательным элементам дома, но их наличие делает жизнь более комфортной.

Планировка внутренних помещений должна обеспечивать благоприятный температурно-влажностный режим, поэтому необходимо предусмотреть и систему вентиляции. Вопрос о наличии или отсутствии подвала связан с характером грунта: при близких грунтовых водах его сооружение нецелесообразно.

Но если все-таки без него не обойтись, то нужно будет заложить расходы в общую смету, поскольку подвал при высоком горизонте грунтовых вод – это дорогостоящее сооружение.

Пошаговая стратегия домового строительства. Шаг 3. Фундамент – основа основ

Строительство дома предусматривает определенный порядок выполнения работ.

1. На месте, где предполагается строить дом, снимают верхний слой грунта и аккуратно укладывают: позже его можно будет использовать для благоустройства территории.

2. Производят разбивку плана дома на местности. Это означает, что на участок переносят план дома в натуральную величину. Если вы не умеете пользоваться теодолитом и нивелиром, можете использовать для этого обычные измерительные инструменты (уровень, угольник, шнур и др.).

3. Определяют на местности крайние угловые точки, которые наметят размеры будущего дома.

4. Проводят разбивку осей фундамента, используя для этого обноску с укрепленным на ней шнуром (рис. 9).

Конструкция обноски

Рис. 9. Конструкция обноски: 1 – доски обноски; 2 – гвозди; 3 – шнуры; 4 – разметка фундамента

Обноску выполняют из кольев, вкапывая их и прибивая на высоте 75-100 см от уровня планировки горизонтальные доски, положенные на ребро. При этом необходимо контролировать их горизонтальность.

5. Перемещают колья обноски примерно на 1,5 м в стороны, чтобы обноска не пострадала при рытье котлована или траншеи.

6. Переносят на местность расстояние между осями стен дома и забивают в этих точках гвозди, от которых вправо и влево намечают привязки фундамента по чертежу. В них также забивают гвозди, чем определяют грани фундамента. По ним и натягивают шнур. При этом обращают внимание на то, чтобы стены дома примыкали друг к другу под прямым углом. Если обнаруживаются ошибки, их необходимо устранить.

Закладываем фундамент

Итак, все предварительные работы проделаны, проект будущего дома разработан, планировка участка закончена, теперь можно приступать непосредственно к строительству.

Прочность и долговечность любой постройки, в том числе и дома, определяются прежде всего качеством заложенного фундамента. В древности строители использовали для этого большие камни, на которые затем устанавливали сруб. Пустоты между камнями заполняли щебнем и небольшими камешками, после чего всю конструкцию обмазывали глиной.

Фундамент представляет собой нижнюю часть дома, предназначение которой заключается в передаче и распределении нагрузки от возведенного здания на грунт, расположенный ниже основания фундамента. При грамотном проектировании он дает возможность заложить конструкцию, запас прочности которой будет составлять не менее 15%, чего вполне хватает для безопасной эксплуатации дома.

Закладывают фундамент сразу же после окончания земляных работ. При этом необходимо выбрать сухой погожий день. Если все-таки накануне прошел дождь, мокрый грунт следует удалить во избежание ухудшения прочностных качеств фундамента и потери его несущей способности.

Своим основанием он опирается на грунт. Эта плоскость называется подошвой фундамента , а его верхняя часть – обрезом . Расстояние между ними составляет его высоту . Фундамент закладывается на определенную глубину, которая равна расстоянию от планировочной отметки на поверхности земли до его подошвы.

В том случае, если фундамент не отвечает соответствующим нормам и стандартам, увеличивается риск образования трещин на стенах, неправильного распределения нагрузки и, как следствие, обрушения здания. Качественный фундамент предполагает определенные затраты. Стоимость его может составлять примерно 25% от стоимости всего дома (некоторые авторы считают, что она может доходить до 70%). Однако, несмотря на достаточно высокую стоимость и трудоемкость, связанную с возведением фундамента, экономить на этом нельзя, так как ликвидация последствий допущенных серьезных ошибок может значительно превысить первоначальные затраты.

Тип фундамента зависит от характера грунта, на котором он будет закладываться.

Страницы:


ООО "Гриднев" © 2016-2026

  E-mail: contacts@gridnev.biz